PROJECTS
about
SO
PROJECTS
about
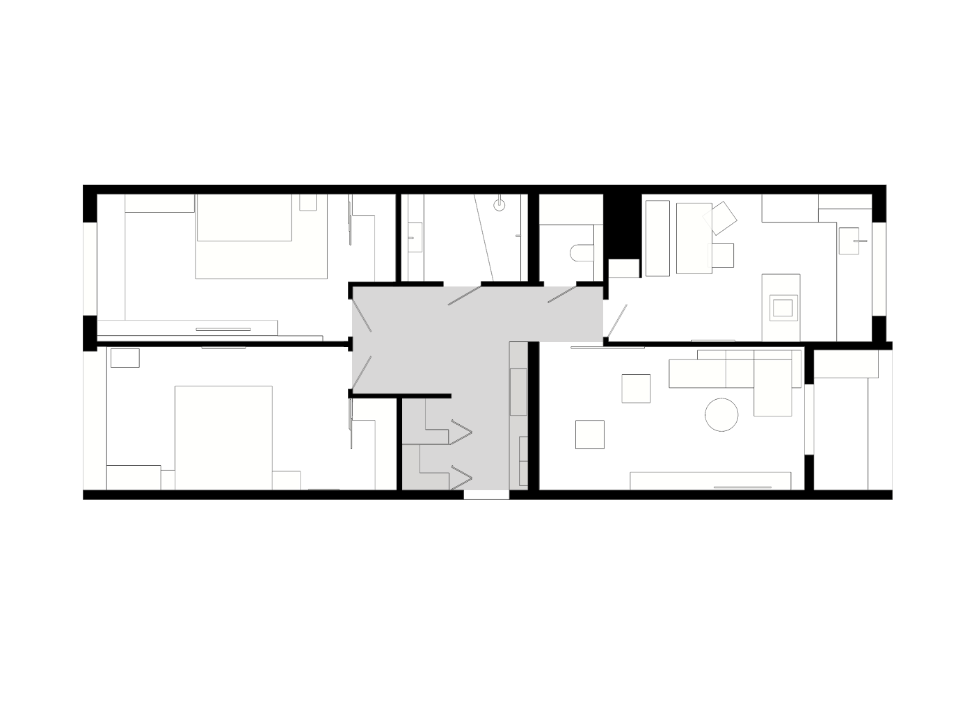
K29 APT. HALLWAY
K29 APT. HALLWAY
⠀
TYPE: apartment
LOCATION: Odessa Ukraine
TOTAL AREA: 108,8 sq.m.
YEAR: 2019
INTERIOR DESIGN:
Space odyssey
3D VISUALIZATION:
Maria Shiyan
PART 1
PART 2
PART 3
PART 4
PART 5
↑
Back to Top