PROJECTS
about
SO
PROJECTS
about
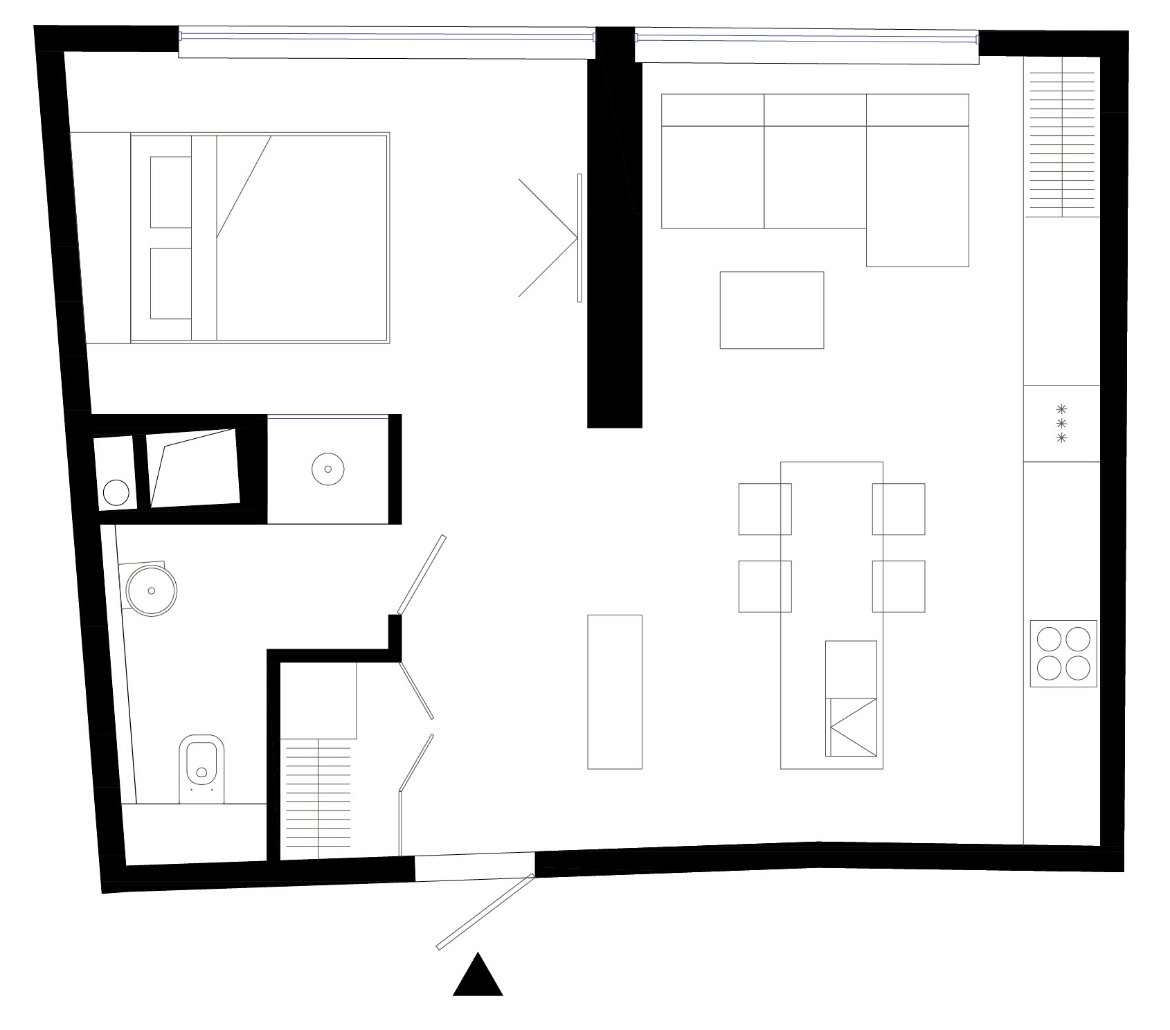
Sea view studio apartment apt. 106
зроблено для I
made for:
Sea & sky apartments
у співпраці з I
in collaboration with:
Roman Zolotko
локація І
location: Odesa, Ukraine
площа I
area: 47 m²
фотограф I
photographer:
8beam
реалізацая |
realization: 2018
Варіанти зонування |
zoning variants
↑
Back to Top